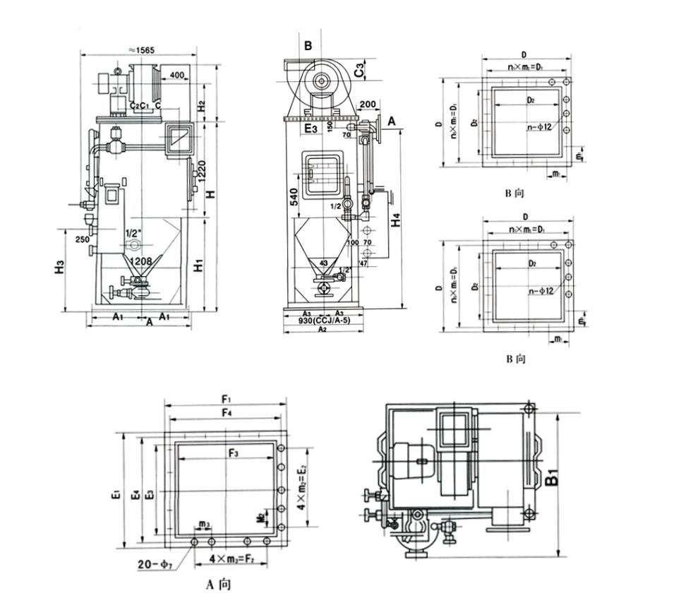
简介
CCJ/A型冲激式除尘器组有几种不同型式的排泥浆方法,本型号为锥形漏斗排泥浆的冲激式除尘机组,定型为CCJ/A(C—冲激式;C—除尘;J—机组;A—锥形漏斗排泥浆)。CCJ/A型冲激式除尘器按处理风量的能力分八种规格。
选用说明
一、CCJ/A型冲激式除尘器适用范围:本机组适用于干净化非纤维性,无腐蚀性的温度不高于300℃的含尘气体。CCJ/A型冲激式除尘器适用于冶金、煤炭、化工、铸造、发电、建筑材料及耐火材料等企业。在用于具有粘性的生石灰运输系统中的除尘亦能获得很好的效果,这是CCJ/A型冲激式除尘器的又一突出优点。
二、溢流箱的水封高度是按机组分雾室内负压不大于400毫米水柱或正压不大于150毫米水柱设计的,非此使用条件,需另行设计溢流箱。
技术性能CCJ/A型冲激式除尘器
| 型号规格 | JK风速(m/s) | 处理风量(m3/h) | 阻力(kg/m2) | 耗水量(t/h) | 效率(%) | 外型尺寸(长×宽×高) | 重量(kg) |
| CCJ/A-5 | 18 | 5000 | 100-160 | 0.16 | 99 | 1568×1284×3124 | 809 |
| CCJ/A-7 | 7000 | 0.23 | 1568×1634×3240 | 1058 | |||
| CCJ/A-10 | 10000 | 0.33 | 1568×2012×3579 | 1212 | |||
| CCJ/A-14 | 14000 | 0.46 | 1956×2600×4828 | 2430 | |||
| CCJ/A-20 | 20000 | 0.66 | 2573×2600×4828 | 3370 | |||
| CCJ/A-30 | 30000 | 0.98 | 3279×2600×4828 | 4132 | |||
| CCJ/A-40 | 40000 | 1.32 | 4200×2250×5196 | 5239 | |||
| CCJ/A-60 | 60000 | 1.97 | 5913×2250×5566 | 6984 |



本文链接:http://shouchenqi.com/?id=183 转载注明出处!